289 Chappelle Drive SW

289 Chappelle Drive SW

Home type: Single Family Detached Garage

3 Bed 2.5 Bath 1728 square feet

Move in Ready

Priced at
$485,608

Pre-GST. Includes home & lot.

*Prices subject to change without notice. E.&O.E.

Possession Date Immediate

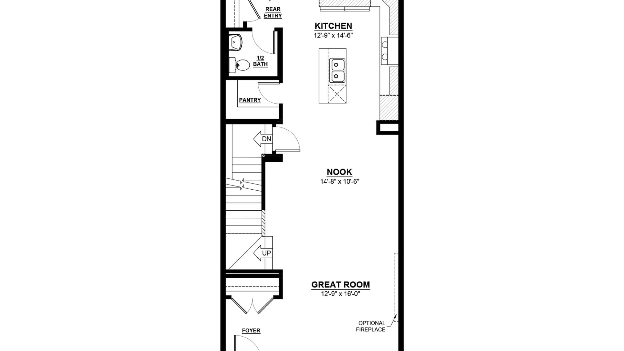
The Carrera-z is a 1,728 square foot single family home featuring 3 good size bedrooms, a bonus room and 2.5 bathrooms. The main floor has 9 ft. ceilings throughout and a private half bathroom tucked out of the way. The open concept main floor leads to the kitchen where you will find an island with extended eating bar and pantry, as well as room for a luxury kitchen appliance package (side by side refrigerator, built-in wall oven, microwave, and dishwasher). A laundry closet with linen storage sits on the upper floor alongside three bedrooms and a central bonus room. The Primary bedroom has a walk-in closet with a window for additional light and an ensuite featuring double sinks. Options include standard basement development, legal basement suite and separate side entry, or a garden suite (where permitted).

Actual product may differ slightly from the images, floor plans and renderings shown.

Community

Chappelle Gardens

An established Southwest Edmonton community designed with families in mind, featuring green spaces, schools, and convenient access to daily essentials.

Explore the community

Move-in Ready More homes in the area

Community: Chappelle Gardens
IMMEDIATE POSSESSION

262 Chappelle Drive SW

3 Bed 2.5 Bath 1707 square feet

Home Type: Side Entry

$471,428 Pre-GST. Includes home & lot.

Community: Chappelle Gardens
IMMEDIATE POSSESSION

284 Chappelle Drive SW

3 Bed 2.5 Bath 1638 square feet

$494,949 Pre-GST. Includes home & lot.

Community: Chappelle Gardens
IMMEDIATE POSSESSION

275 Chappelle Drive SW

3 Bed 2.5 Bath 1638 square feet

Sale Pending

Sales Consultants

Sales consultant Andrijana Milanovic

587.701.1001 andrijana_sellshomes

About Andrijana

Buying a home is one of the most exciting and sometimes overwhelming decisions you’ll ever make. With over 900 homes sold, I’m here to make that journey as smooth and rewarding as possible. I take the time to truly understand each client’s needs and guide them through the process with care and expertise, ensuring they feel confident in one of the biggest purchases of their lives.
My dedication to exceptional service has earned me multiple industry accolades, including multiple BILD awards.
I am passionate about supporting my clients throughout the home buying process, ensuring they feel informed, confident, and excited about their decision. Let’s make your dream home a reality together!

Communities

Languages

  • English

Subscribe to our newsletter

Treaty Six Territory

We acknowledge that the land on which the Daytona Homes Edmonton office resides is on Treaty Six Territory–a traditional meeting ground, gathering place, and travelling route for many indigenous people. We honour and respect the history, languages, ceremonies and culture of the First Nations, Metis and Inuit who call this territory home.

© 2026 Daytona Homes. All Rights Reserved