The Aviator-z III E

The Aviator-z III E

Home type: Single Family Attached Garage

3 Bed 2.5 Bath 2143 square feet

Move in Ready

Priced at
$714,190

Pre-GST. Includes home & lot.

*Prices subject to change without notice. E.&O.E.

Possession Date July 2026

Included Features

  • 9' Foundation
  • Corner Lot
  • Fireplace
  • Rear Entry
  • Tiled Ensuite Shower
  • West Facing Backyard

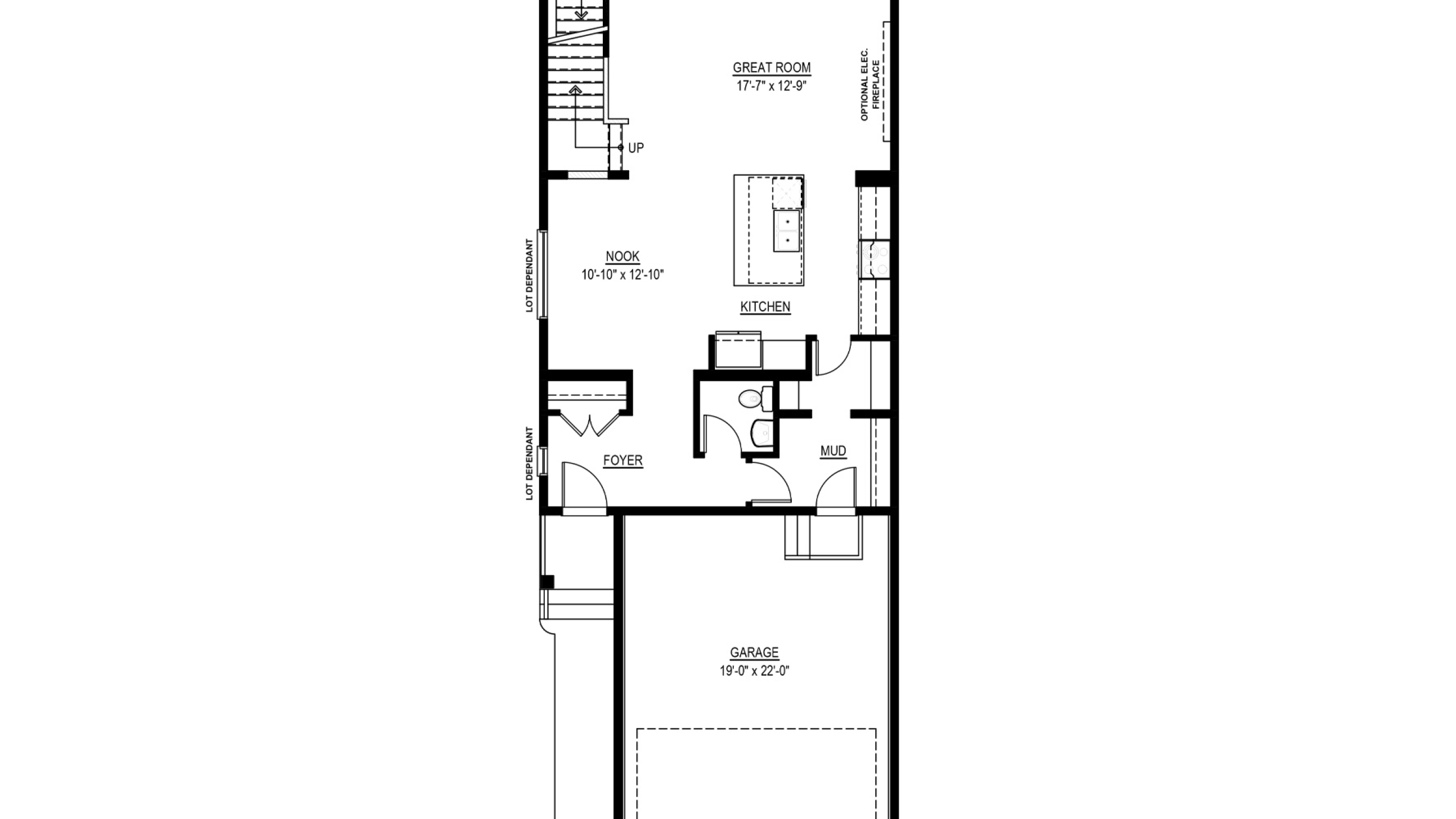
The Aviator-z is a 2,143 sq. ft. home with 3 bedrooms and 2.5 baths. It is available in available in Craftsman, Colonial and Prairie designs. The main floor has a 9 ft. ceiling. The foyer leads into a combined, open-concept great room and nook area for dining and entertaining purposes. The modern kitchen has a built-in microwave and a large walk-in pantry for extra space. The main floor also includes a ½ bath and an attached 2-car garage. The Upper floor includes 3 bedrooms , a central bonus room and main bathroom with double sinks. For added convenience, the laundry room includes cabinets with a counter tops, a hanging rail and an extra linen closet. The Primary bedroom has a sizable walk-through closet and an accompanying ensuite with double sinks, a soaker tub and a stand alone shower. The Aviator also has an optional dropped great room, basement development or a basement suite with optional rear entry to add an income suite to your home.

Actual product may differ slightly from the images, floor plans and renderings shown.

Community

Walden

Last Chance in Walden! Come explore our final phase.

Explore the community

Move-in Ready More homes in the area

Community: Walden

The Austyn-z B

3 Bed 2.5 Bath 2271 square feet

Home Type: Backs onto Greenspace, 9 Foot Foundation, Sunshine Basement, Rear Deck with Stairs to Grade, Tiled Ensuite Shower

$733,238 Pre-GST. Includes home & lot.

Community: Walden

The Palisade-z II F

3 Bed 2.5 Bath 2169 square feet

Home Type: Walkout Basement onto Greenspace, Third Story Loft, Rear Deck, 9 Foot Foundation

$733,238 Pre-GST. Includes home & lot.

Community: Walden

The Canyon-z

3 Bed 2.5 Bath 2081 square feet

Home Type: Walkout Basement onto Greenspace/Pond, Balcony off Primary Bedroom, Rear Deck, Optional Extended Kitchen, Tiled Ensuite Shower

$723,714 Pre-GST. Includes home & lot.

Sales Consultants

Sales consultant Sandi Newell

403.620.3040 daytonahomesyyc

About Sandi

During more than 20 years of industry experience in and around Calgary, I have successfully sold multi family, custom and single family homes. Since joining Daytona Homes in 2021, my successes have been recognized with customer service and sales awards. My approach in working with potential clients to find a new home that best suits their needs is both honest and collaborative, I love that every client is unique in their needs and wants so the learning never ends.  The greatest reward is to be there on possession day to welcome the family to their new home.

Communities

Languages

  • English

Subscribe to our newsletter

Treaty Seven Territory

Daytona Homes Calgary is located on the traditional territories of First Nations Peoples of Treaty 7. The Treaty 7 Lands in Southern Alberta are home to the Kainai Nation, Piikani Nation, Siksika Nation, Tsuu T’ina Nation, and the Bearspaw, Chiniki and Wesley (Stoney- Nakoda) Nations. Calgary is also home to Region 3 of the Métis Nation of Alberta.

© 2026 Daytona Homes. All Rights Reserved