The Canyon-z B

The Canyon-z B

Home type: Single Family Attached Garage

3 Bed 2.5 Bath 2081 square feet

Priced at
$752,286

Pre-GST. Includes home & lot.

*Prices subject to change without notice. E.&O.E.

Possession Date July 2026

Included Features

  • 9' Foundation
  • Basement Suite
  • Fireplace

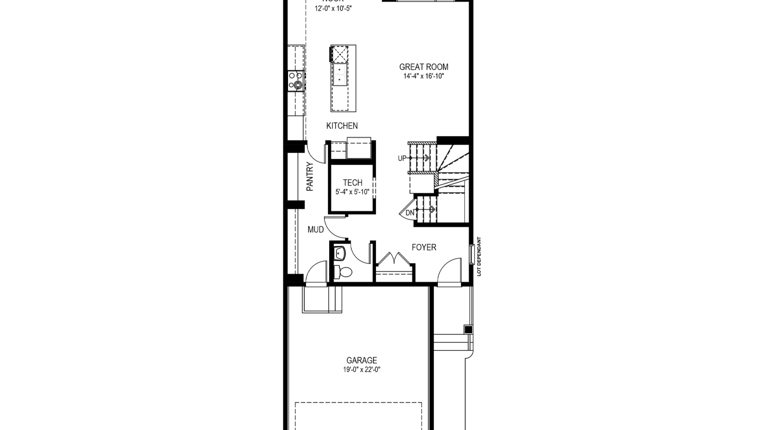
The Canyon-z  is a 2,081 square foot single family home with front attached garage with 3 bedrooms, a bonus room, tech space and 2.5 bathrooms. The main floor has 9 ft. ceilings throughout, a private half bathroom tucked out of the way and a cozy tech space. The main floor central space hosts the nook, great room and kitchen which includes an island with an extended eating bar and a walk-through pantry into the mudroom and garage access. Upstairs you will find a central bonus room, two bedrooms, a laundry room with storage and a main bathroom at the front of the home. The Primary Bedroom, at the rear of the home, includes a walk-in closet and ensuite featuring dual sinks, a water closet, and a free-standing oval tub. Options include basement development, legal basement suite and separate side entry.

Actual product may differ slightly from the images, floor plans and renderings shown.

Floorplans & Photos
Community

Walden

Last Chance in Walden! Explore our final phase *By appointment only*

Explore the community

More homes in the area

Move-in Ready
Community: Walden

The Austyn-z B

3 Bed 2.5 Bath 2271 square feet

Home Type: Backs onto Greenspace, 9 Foot Foundation, Sunshine Basement, Rear Deck with Stairs to Grade, Tiled Ensuite Shower

Sale Pending

Community: Walden

The Aviator-z III E

3 Bed 2.5 Bath 2143 square feet

Home Type: West Backing, Corner Lot, Additional Windows, Optional Rear Entry, 9 Foot Foundation, Tiled Ensuite Shower

$714,190 Pre-GST. Includes home & lot.

Community: Walden

The Breeze-z II P

3 Bed 2.5 Bath 2054 square feet

Home Type: South Backing, Cul-De-Sac, 9 Foot Foundation, Optional Side Entry, Widened Garage, Vaulted Primary Bedroom,

$676,095 Pre-GST. Includes home & lot.

Promos & News

2025 NEW MODEL LINEUP

Explore our newest models for 2025 and our offers!

Sales Consultants

Sales consultant Sandi Newell

587.291.2288 daytonahomesyyc

About Sandi

During more than 20 years of industry experience in and around Calgary, I have successfully sold multi family, custom and single family homes. Since joining Daytona Homes in 2021, my successes have been recognized with customer service and sales awards. My approach in working with potential clients to find a new home that best suits their needs is both honest and collaborative, I love that every client is unique in their needs and wants so the learning never ends.  The greatest reward is to be there on possession day to welcome the family to their new home.

Communities

Languages

  • English

Subscribe to our newsletter

Treaty Seven Territory

Daytona Homes Calgary is located on the traditional territories of First Nations Peoples of Treaty 7. The Treaty 7 Lands in Southern Alberta are home to the Kainai Nation, Piikani Nation, Siksika Nation, Tsuu T’ina Nation, and the Bearspaw, Chiniki and Wesley (Stoney- Nakoda) Nations. Calgary is also home to Region 3 of the Métis Nation of Alberta.

© 2026 Daytona Homes. All Rights Reserved