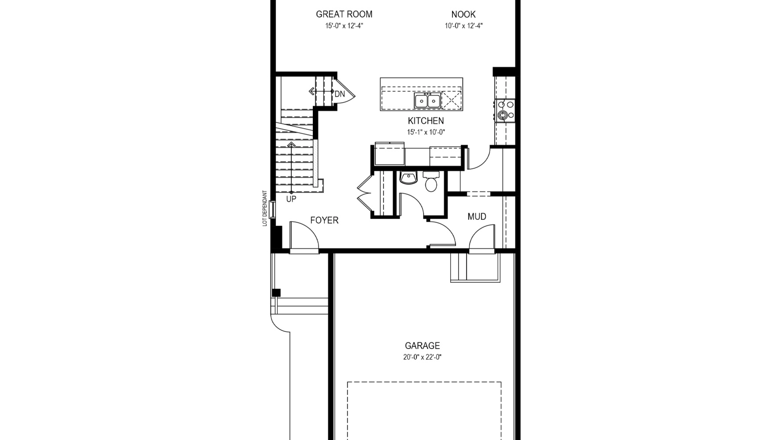
The Ranger-z has a total living space of 1,936 Sq.Ft. with 3 bedrooms, 2.5 baths and a cozy bonus room retreat. Walking through the foyer toward the kitchen there is a private half bathroom tucked away for privacy. The kitchen in this home is open to the great room and nook and includes an island with an extended eating bar and a pantry that walks through to the mud room and double car garage for added convenience. Upstairs, at the front of the home, you will find two bedrooms, a main bath and an efficiently located laundry room. The bonus room and primary bedroom sit at the rear of the home. Included in the Primary bedroom is a well-appointed ensuite featuring dual sinks, a free-standing oval soaker tub, and a walk-in closet. Create more living space by developing the optional basement or legal suite with side entry. If open to below is more to your liking than a bonus room on the upper floor, we have that option as well.
Floorplans & Photos Explore The Ranger-z
Actual product may differ slightly from the images, floor plans and renderings shown.
Move-in Ready These homes are ready and waiting for you
Some home models come in a variety of exterior styles to perfectly compliment the communities in which they’re built.
The Ranger-z MF
Home Type: West Facing Backyard, Legal Basement Suite, 9 Foot Foundation, 200 AMP, Fireplace, Tiled Ensuite Shower
$733,238 Pre-GST. Includes home & lot.
Communities This model is available to build in...

Subscribe to our newsletter
Treaty Seven Territory
Daytona Homes Calgary is located on the traditional territories of First Nations Peoples of Treaty 7. The Treaty 7 Lands in Southern Alberta are home to the Kainai Nation, Piikani Nation, Siksika Nation, Tsuu T’ina Nation, and the Bearspaw, Chiniki and Wesley (Stoney- Nakoda) Nations. Calgary is also home to Region 3 of the Métis Nation of Alberta.
© 2025 Daytona Homes. All Rights Reserved