Home Model
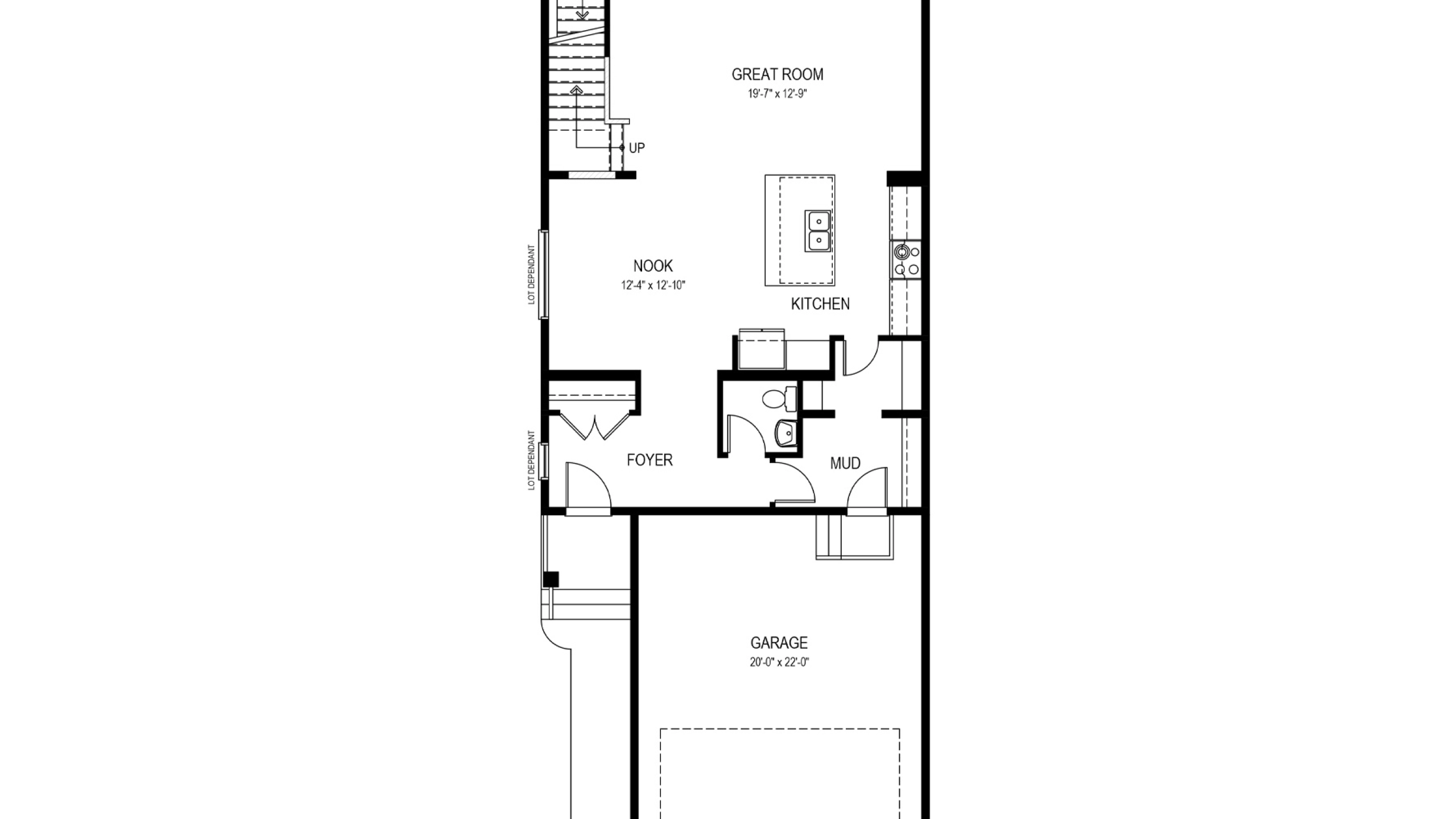
The Aviator-z IV is a 2,277 sq. ft. home featuring 3 bedrooms , 2.5 baths and a bonus room. The main floor has a 9 ft. ceiling. The foyer with closet leads into a combined, open-concept great room and nook area for dining and entertaining purposes. Featured in the kitchen is an island with an extended eating bar and a pantry that walks through to the mudroom includes a bench and access to the double car garage. The Upper floor includes 3 bedrooms , a central bonus room, main bathroom and a full laundry room with shelf. The Primary Bedroom has a sizable walk-in closet and an accompanying ensuite featuring double sinks, and an oval free-standing soaker tub.. The Aviator also has an optional basement development or a basement suite with optional rear entry to add an income suite to your home.
Floorplans & Photos Explore The Aviator-z IV
Actual product may differ slightly from the images, floor plans and renderings shown.
Move-in Ready These homes are ready and waiting for you
Some home models come in a variety of exterior styles to perfectly compliment the communities in which they’re built.
The Aviator-z IV MF
Home Type: 9 Foot Foundation, Optional Rear Entry to Basement, West Facing, Tiled Ensuite Shower
Sale Pending
Communities This model is available to build in...

Subscribe to our newsletter
Treaty Seven Territory
Daytona Homes Calgary is located on the traditional territories of First Nations Peoples of Treaty 7. The Treaty 7 Lands in Southern Alberta are home to the Kainai Nation, Piikani Nation, Siksika Nation, Tsuu T’ina Nation, and the Bearspaw, Chiniki and Wesley (Stoney- Nakoda) Nations. Calgary is also home to Region 3 of the Métis Nation of Alberta.
© 2025 Daytona Homes. All Rights Reserved