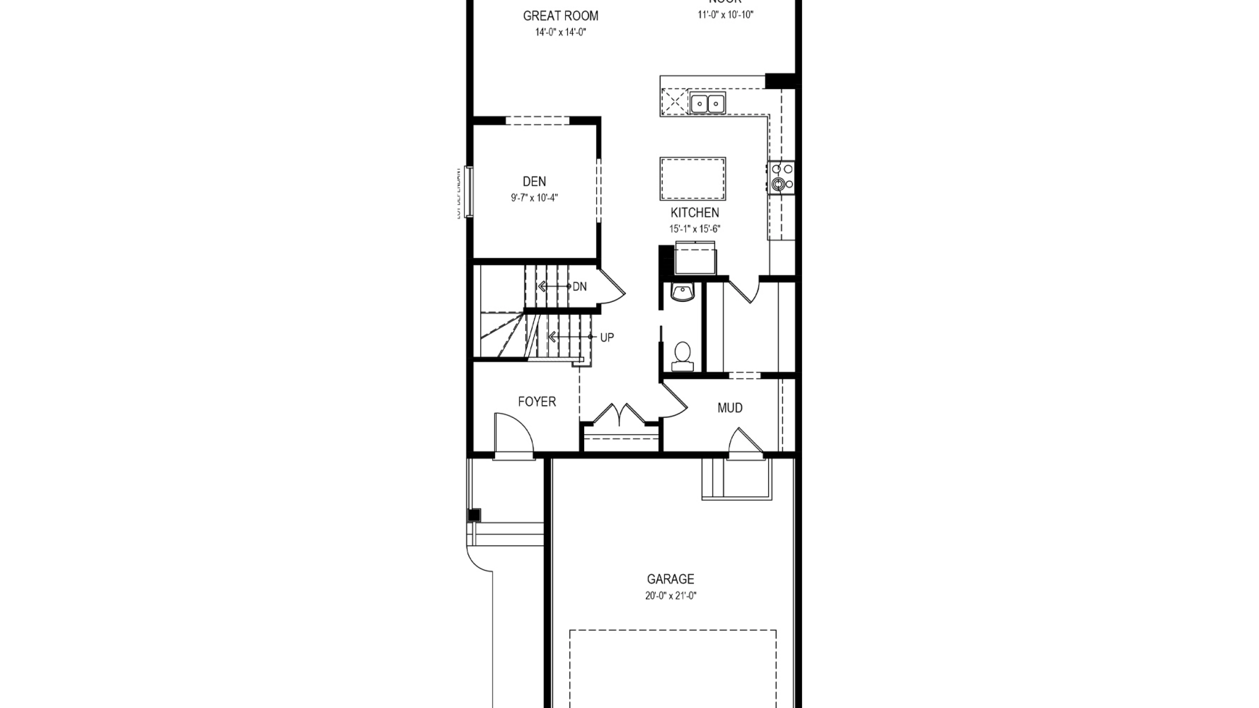
The Austyn-z II has a total living space of 2,374 sq.ft. with 3 bedrooms, 2.5 baths, a den and a cozy upper floor bonus room. The foyer of this home includes a closet and a privately located Half Bathroom and leads to the main floor living area. The Den with dual access, sits off the kitchen which includes a walk-through pantry to the mudroom and attached, double car garage. A great room and nook sit across the back of this home adorned with large windows and patio door access to the outdoors. Enjoy the open to below feature on the second floor overlooking the foyer, just outside the Primary Bedroom with walk-in closet and ensuite. The ensuite features an oval, free standing soaker tub, double sinks, and a water closet. Central to this upper floor is the bonus room, large laundry room and a loft area. The two additional bedrooms each include a walk-in closet. Create more living space by adding an optional side entry and/or developing the optional basement. If more bedroom space is needed, we also have a 4 bedroom option available.
Floorplans & Photos Explore The Austyn-z II
Actual product may differ slightly from the images, floor plans and renderings shown.
Move-in Ready These homes are ready and waiting for you
Some home models come in a variety of exterior styles to perfectly compliment the communities in which they’re built.
The Austyn-z II MF
Home Type: Corner Lot, 9 Foot Foundation, Optional Side Entry, Main Floor Den, Optional Fourth Bedroom Second Floor
$780,857 Pre-GST. Includes home & lot.
Communities This model is available to build in...

Subscribe to our newsletter
Treaty Seven Territory
Daytona Homes Calgary is located on the traditional territories of First Nations Peoples of Treaty 7. The Treaty 7 Lands in Southern Alberta are home to the Kainai Nation, Piikani Nation, Siksika Nation, Tsuu T’ina Nation, and the Bearspaw, Chiniki and Wesley (Stoney- Nakoda) Nations. Calgary is also home to Region 3 of the Métis Nation of Alberta.
© 2025 Daytona Homes. All Rights Reserved