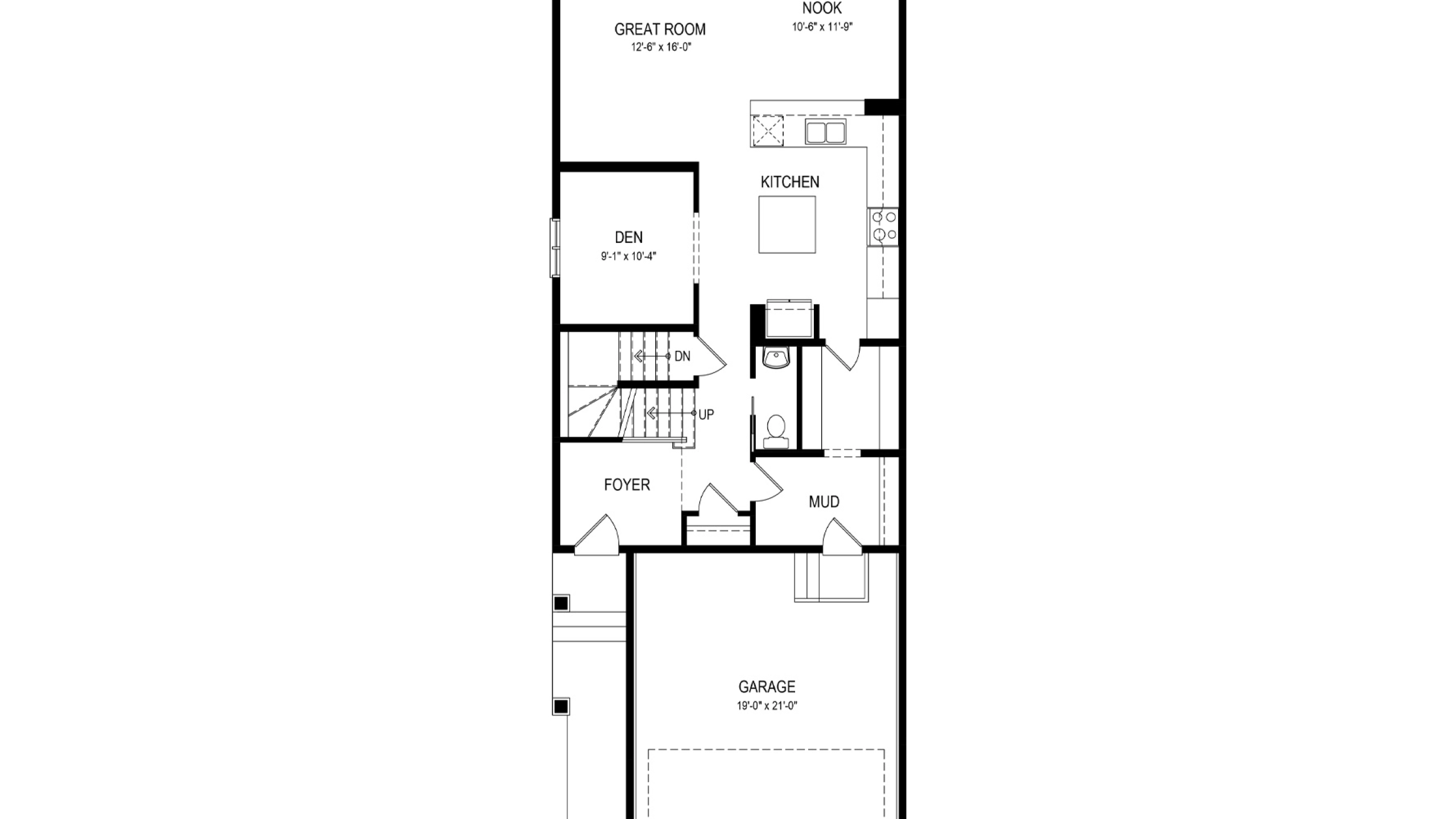
The Austyn has a total living space of 2,259 sq.ft. with 3 bedrooms, 2.5 baths, a Den and a cozy upper floor Bonus Room. The foyer of this home includes a closet and on the way to the main living space sits a privately placed Half bathroom. The Den sits off the Kitchen which includes a walk-through pantry to the mudroom and attached, double car garage. A great room and nook are located across the back of this home adorned with windows and patio door access to the outdoors. Enjoy the open to below feature on the second floor, just off the Primary bedroom with walk-in closet and ensuite. The ensuite includes an oval, free standing soaker tub, double sinks, and a water closet. Center to this upper floor is the bonus room and large laundry room. The two additional bedrooms, including walk in closets and are adjacent to the tech space and main bathroom. Create more living space by adding an optional side entry and/or developing the optional basement.
Floorplans & Photos Explore The Austyn
Actual product may differ slightly from the images, floor plans and renderings shown.
Move-in Ready These homes are ready and waiting for you
Some home models come in a variety of exterior styles to perfectly compliment the communities in which they’re built. 
        
        
        
                    The Austyn E
Home Type: 9 Foot Foundation, Optional Side Entry, Main Floor Den, Fireplace
Sale Pending
Communities This model is available to build in...
 
    Subscribe to our newsletter
Treaty Seven Territory
Daytona Homes Calgary is located on the traditional territories of First Nations Peoples of Treaty 7. The Treaty 7 Lands in Southern Alberta are home to the Kainai Nation, Piikani Nation, Siksika Nation, Tsuu T’ina Nation, and the Bearspaw, Chiniki and Wesley (Stoney- Nakoda) Nations. Calgary is also home to Region 3 of the Métis Nation of Alberta.
© 2025 Daytona Homes. All Rights Reserved
 
                     
                     
                     
                     
                 
                     
                     
                     
                     
                     
                    