The Romeo CT

The Romeo CT

Home type: Single Family Attached Garage

3 Bed 2.5 Bath 1824 square feet

Priced at
$618,952

Pre-GST. Includes home & lot.

*Prices subject to change without notice. E.&O.E.

Possession Date May 2026

Included Features

  • 9' Foundation
  • Fireplace
  • Located on a Cul-de-sac
  • Side Entry
  • Sunshine Basement
  • Tiled Ensuite Shower

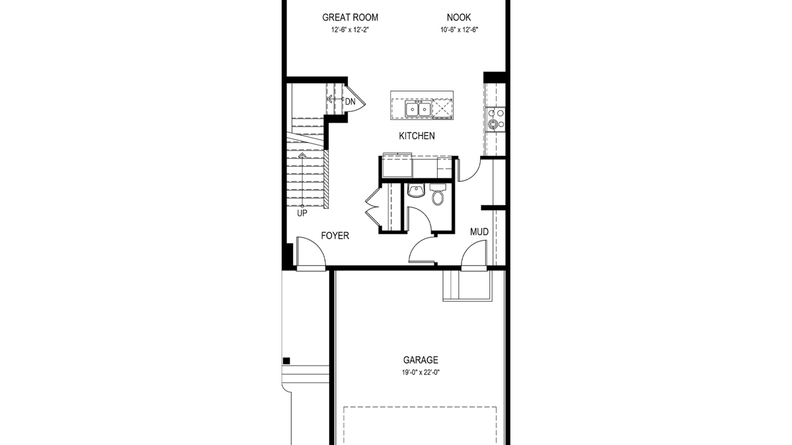
The Romeo offers 1,824 sq. ft. of thoughtfully designed living space across two levels. A welcoming front foyer sets the tone for this family-friendly home, with convenient access to a spacious mudroom and a tucked-away half bath. The main floor features a 9-foot ceiling and a bright, open-concept layout that seamlessly connects the great room, dining nook, and kitchen. A central island enhances functionality, making the kitchen a natural hub for family gatherings and entertaining. The mudroom includes built-in storage and direct garage access, offering everyday practicality.

Upstairs, a central bonus room creates a sense of separation and privacy between the front-facing secondary bedrooms and the rear primary suite. The second floor, with an 8-foot ceiling, also includes a full bathroom and a dedicated laundry room. The spacious primary bedroom is complemented by a large walk-in closet and a well-appointed ensuite.

Optional layouts include a fourth bedroom and side entry. Basement options incllude a fully finished rec room with an additional bedroom or a legal suite with its own kitchen, living area, laundry, and bedroom.

Actual product may differ slightly from the images, floor plans and renderings shown.

Floorplans & Photos
Community

Southbow Landing

Single family, and double front attached duplexes available.

Explore the community

More homes in the area

Move-in Ready
Community: Southbow Landing

The Canyon R

3 Bed 2.5 Bath 2081 square feet

Home Type: 9 Foot Foundation, Oversized Garage, Optional Side Entry, Large Walkthrough Pantry, Fireplace

$657,048 Pre-GST. Includes home & lot.

Community: Southbow Landing

The Alfa CT

3 Bed 2.5 Bath 2013 square feet

Home Type: Backing onto Greenspace/Playground, 9 Foot Foundation, Optional Side Entry, Additional Windows, Tiled Ensuite Shower

$638,000 Pre-GST. Includes home & lot.

Community: Southbow Landing

The Austyn CT

3 Bed 2.5 Bath 2259 square feet

Home Type: South Facing Backyard, Sunshine Basement, Rear Deck, 9 Foot Foundation, Optional Side Entry, Basement Suite Future Rough-In

Sale Pending

Sales Consultants

Sales consultant Josh Anderson

587.291.2288 daytonahomes.cochranesales

About Josh

Helping people find the right home is more than a job—it’s a responsibility I take to heart. With close to ten years in the new home industry, I’ve built my approach around clear communication, consistency, and creating a positive experience every step of the way. I’m proud to work alongside a teammate who shares the same dedication to putting clients first. We’ve created a smooth, supportive buying process that takes the guesswork out of homeownership.
When I’m not working with clients, I’m usually out on the golf course. It’s my way of unwinding, staying sharp, and keeping a healthy sense of competition alive.

Communities

Languages

  • English

Sales consultant Meghan Scott

587.291.2288 daytonahomes.cochranesales

About Meghan

With nearly a decade of experience as a New Home Specialist, I understand the emotions and challenges that come with buying a home. I focus on honest communication, follow-through, and building trust—foundations of both my business and reputation.
I’m grateful to work with a partner who shares my values & client-first approach. Together, we’ve refined the homebuying process to make it clear, manageable, and well-supported from start to finish. Outside of work, I’m passionate about yoga, fitness, and spending quality time with my family—priorities that keep me grounded and motivated every day.

Communities

Languages

  • English

Subscribe to our newsletter

Treaty Seven Territory

Daytona Homes Calgary is located on the traditional territories of First Nations Peoples of Treaty 7. The Treaty 7 Lands in Southern Alberta are home to the Kainai Nation, Piikani Nation, Siksika Nation, Tsuu T’ina Nation, and the Bearspaw, Chiniki and Wesley (Stoney- Nakoda) Nations. Calgary is also home to Region 3 of the Métis Nation of Alberta.

© 2026 Daytona Homes. All Rights Reserved